Современные архитектурно-строительные проекты требуют высокой точности, скорости разработки и экономической эффективности. Традиционные методы проектирования часто не позволяют оперативно анализировать множество вариантов и учитывать все взаимосвязи между элементами здания. В этих условиях параметрическое моделирование на базе BIM становится ключевым инструментом, позволяющим не только создавать сложные динамические формы, но и оптимизировать проектные решения на всех этапах жизненного цикла объекта. После перехода в проектирование в трехмерном пространстве, архитекторы всего мира стали искать новые возможности, которые позволили бы придать выразительности, плавности и порой воздушности объектам, чтобы создавать не только место для работы и отдыха, но и подчеркнуть уникальность каждого здания и сооружения.
Актуальность исследования обусловлена тем, что в современной архитектурной практике всё чаще реализуются объекты с нестандартной геометрией, что существенно ограничивает применимость традиционных методов проектирования. Одновременно повышается запрос со стороны заказчиков на гибкость и вариативность -требуется оперативно генерировать несколько вариантов проекта с детальным сопоставлением их технико‑экономических показателей. Важным стимулом к внедрению новых подходов становится необходимость снижения количества ошибок: автоматизация расчётов и проверок в BIM‑среде позволяет минимизировать влияние человеческого фактора и заметно сократить затраты на последующую доработку проектной документации. Кроме того, параметрическое моделирование выступает фундаментальной основой для интеграции в архитектурный процесс передовых технологий — таких как генеративный дизайн, искусственный интеллект и машинное обучение.
Цель работы заключается в комплексном исследовании методов и инструментов параметрического моделирования на базе BIM для архитектурного проектирования. Исследование направлено на анализ принципов интеграции параметрических методов в BIM среду, а также выявление преимуществ и ограничений использования параметрических моделей при проектировании сложных архитектурных объектов.
Параметрическое моделирование — метод проектирования, в основе которого лежит использование параметров элементов, являющихся составной частью общей модели, а также соотношения между этими параметрами, определяющие геометрическую форму модели. Изменения одного параметра автоматически приводят к корректировке всей модели.
Основные принципы параметрического моделирования:
– Объектно‑ориентированность: каждый элемент модели — самостоятельный объект с набором свойств.
– Ассоциативность: связь между элементами модели, обеспечивающая автоматическое обновление при изменениях.
– Параметризация: задание зависимостей между параметрами через формулы и алгоритмы.
– Иерархия: структурирование модели по уровням cложности. Методы параметрического моделирования представляют собой различные подходы к созданию цифровых моделей, в которых элементы связаны между собой определёнными зависимостями:
– Геометрическая — основан на задании геометрических зависимостей между элементами модели. В рамках этого подхода проектировщик определяет ключевые параметры: размеры, углы, расстояния и пропорции между объектами. При изменении любого из этих параметров система автоматически корректирует связанные с ним элементы. Такой метод особенно удобен на ранних стадиях проектирования, когда часто меняются базовые габариты и компоновка.
– Табличная — заключается в задании параметров через таблицы и базы данных. Вместо прямого редактирования геометрии пользователь работает с табличными формами, где перечислены характеристики элементов, их количество, материалы и прочие свойства. Этот подход удобен для управления спецификациями материалов, составления ведомостей объёмов работ и работы с каталогами типовых элементов.
– Физико‑механическая — учитывает физические характеристики объектов. В рамках этого метода в модель закладываются параметры нагрузок, деформаций, теплотехнических и акустических свойств материалов. Это позволяет проводить инженерные расчёты прямо в среде проектирования: например, оценить, как изменение толщины стены повлияет на теплопотери здания, или как перераспределение нагрузок скажется на прочности конструкции.
Каждый из этих методов может применяться как самостоятельно, так и в комбинации друг с другом — в зависимости от задач проекта и стадии проектирования. Совместное использование разных подходов к параметризации повышает гибкость и точность моделирования, позволяя создавать сложные, адаптивные и оптимизированные архитектурные решения.
Преимущество BIM заключается в создании единой цифровой среды: все участники проекта — от архитектора до подрядчика — работают с общей виртуальной моделью объекта. Это устраняет фрагментацию данных: вместо разрозненных чертежей и сопроводительных документов формируется целостная информационная структура, доступная каждому участнику в режиме реального времени. Интеграция расчётов и смет в BIM‑модель позволяет архитекторам принимать обоснованные проектные решения с учётом бюджетных ограничений и функциональных целей объекта. Например, анализ стоимости материалов в рамках модели помогает выбрать экономически эффективные решения, а возможность интеграции технологий.
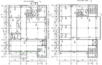
Практическая реализация : оптимизация планировки здания архитектурного бюро
Задача: оптимизировать планировку здания по критериям:
– удобное расположение помещений на небольшой территории;
– соблюдение норм инсоляции;
– минимизация площади коридоров;
– обеспечение пожарной безопасности.
Перспективы развития:
– интеграция с инструментами генеративного дизайна;
– использование машинного обучения для прогнозирования оптимальных параметров;
– расширение критериев оптимизации (энергоэффективность, стоимость жизненного цикла).
Рис. 1. Настройка параметрической модели
Рис. 2. Конечный результат
Исследование инструментов и методов параметрического моделирования на базе BIM отвечает актуальным потребностям архитектурной практики, способствует развитию цифровых компетенций отрасли и создаёт основу для внедрения передовых проектных решений. Его результаты будут полезны как для научных изысканий, так и для практического применения в проектных бюро, строительных компаниях и органах градостроительного регулирования. Внедрение параметрического моделирования в BIM‑среде позволяет не только создавать сложные архитектурные формы, но и системно оптимизировать проект по множеству критериев. Это повышает конкурентоспособность проектных организаций, снижает риски и способствует реализации устойчивых, экономически эффективных решений.
В ходе исследования подтверждена высокая эффективность оптимизации проектных решений в архитектуре с использованием параметрических алгоритмов на базе BIM платформ.
Литература:
1. Шестопалов Е. В. и др. BIM технологии: учебное пособие. — Курск: ЮЗГУ, 2022;
2. Плешивцев А. А. Технология BIM-проектирования архитектурных объектов//Русайнс, 2023;
3. Алгоритмическое проектирование и визуальное программирование Георгиев Н. Г., Шумилов К. А., Семенов А. А. Визуальное программирование в задачах моделирования строительных конструкций // КиберЛенинка, 2021;
4. Семенов А. А. Автоматизированное моделирование оболочечных конструкций в Autodesk Revit с использованием Dynamo// Материалы конференций СПбГАСУ, 2022;
5. Клюев А. А. Исследование обработки данных в BIM-системах //УрФУ, 2025;
6. Савкин А. Н. Параметризация архитектурных решений в BIM-среде проектирования. // Экономика строительства и природопользования, 2023;
7. Кравченко Г. М., Подолько К. П., Литовченко Т. А. Дигитальная архитектура // Инженерный вестник Дона, 2017, № 4.
8. Т. А. Агасиев, Н. П. Гвоздев, А. П. Карпенко Новый подход к настройке Гауссовой суррогатной модели целевой функции в задаче параметрической оптимизации проектных решений //Вестник МГТУ им. Н. Э. Баумана. Сер. Приборостроение,2023, № 3 Маршак С. Я. Вот какой рассеянный. — М.: АСТ, 2016.
9. Чуковский К. От двух до пяти. — М.: Детская литература, 2017.

